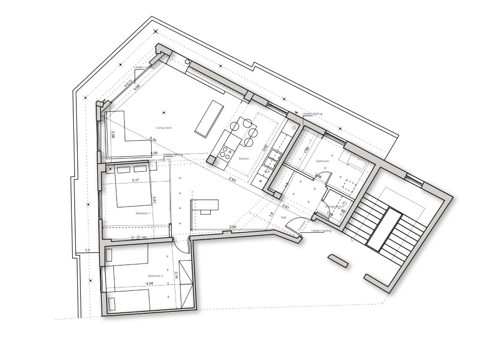
2Π apartment

Σχετικά με το Project

2Π apartment 

Είδος μελέτης : Αρχιτεκτονική μελέτη + Κατασκευή

Τοποθεσία : Γρεβενά

Έτος : 2020

Τετραγωνικά : 98 τ.μ

 

Ριζική ανακαίνιση διαμερίσματος 98 τ.μ για έναν νέο κύκλο ζωής ιδιοκτητών. Πρόκειται για ένα γωνιακό διαμέρισμα με περίοπτη θέα στην κεντρική πλατεία των Γρεβενών. Γκρεζ νότες, ανοιχτόχρωμα υφάσματα, κρυφοί φωτισμοί συνθέτουν ένα μίνιμαλ αποτέλεσμα προσφέροντας στιγμές χαλάρωσης και ηρεμίας στην ατμόσφαιρα του “κατοικείν”.