MS_Office

Σχετικά με το Project

MS_Office 

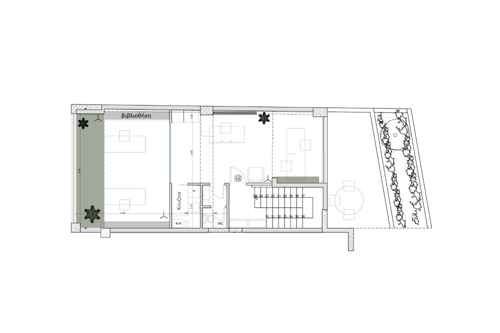
Είδος μελέτης : Αρχιτεκτονική μελέτη

Τοποθεσία : Θεσσαλονίκη, Πεύκα

Έτος : 2022

Τετραγωνικά : 63 τ.μ

 

Πρόκειται για αρχιτεκτονική πρόταση και διακόσμηση γραφείων στα Πεύκα, Θεσσαλονίκης. Ο χώρος συστεγάζει δύο μηχανικούς με κύριο αντικείμενο απασχόλησης, τα φωτοβολταϊκά πάρκα. Η βιωσιμότητα και η ανακυκλώσιμη ενέργεια, στάθηκαν η αφορμή για την συνολική αντιμετώπιση του χώρου, με το πράσινο της ελιάς να μπαίνει για τα καλά στο παιχνίδι, της κατα άλλα μίνιμαλ αρχιτεκτονικής διάθεσης.